Главная
Дома из клееного профилированного бруса
Площадью от 120 до 300 м2 - от 17 500 за м2
Дом из клееного профилированного бруса 9,2х10,65 Вычегда
Базовый комплект дома включает:
- Монтаж (сборка) дома.
- Наружные и внутренние стены выполнены из клеевого профилированного бруса сечением 140 на 160.
- Весь материал антисептирован сенеж огне-био.
- Высота 1-го этажа 2.7 метра, высота 2-го этажа 2.5 метра.
- Балки перекрытий выполнены из доски сечением 50, либо 100 мм с черновым полом 25 мм сплошным.
- Брус проложен джутовым волокном и посажен на деревянный нагель 25 мм.
- Доставка материала, погрузо-разгрузочные работы учтены.
- Стропиловка выполнена из доски 50 мм с обрешеткой под рубероид.
- Доработка под клиента проекта включена в стоимость строительных работ.
Фундамент дома, доставка стройматериалов - рассчитываются индивидуально.
цена 2 300 000 a
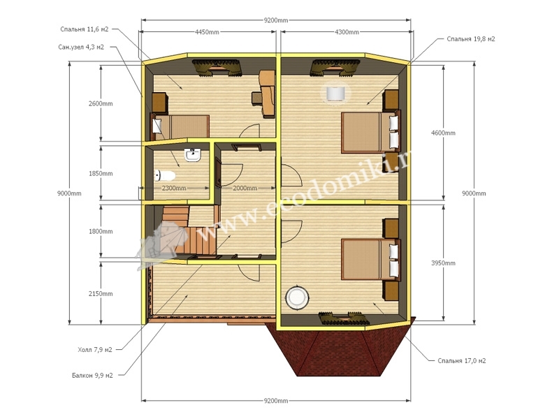
Площадь пола 1 этажа 79,8 м2
Площадь пола 2 этажа 70,5 м2
Площадь кровли 142,2 м2
Площадь застройки 88,7
Контакты
+7 (495) 765-46-48
+7 (963) 663-58-52
Бесплатная консультация
Время работы:
Пн-Сб - с 09:00 до 20:00
