Главная
Дома из клееного профилированного бруса
Площадью до 120 м2 - от 17 500 за м2
Дом из клееного профилированного бруса 6х6 Индига
Базовый комплект дома включает:
- Монтаж (сборка) дома.
- Наружные и внутренние стены выполнены из клеевого профилированного бруса сечением 140 на 160.
- Весь материал антисептирован сенеж огне-био.
- Высота 1-го этажа 2.7 метра, высота 2-го этажа 2.5 метра.
- Балки перекрытий выполнены из доски сечением 50, либо 100 мм с черновым полом 25 мм сплошным.
- Брус проложен джутовым волокном и посажен на деревянный нагель 25 мм.
- Доставка материала, погрузо-разгрузочные работы учтены.
- Стропиловка выполнена из доски 50 мм с обрешеткой под рубероид.
- Доработка под клиента проекта включена в стоимость строительных работ.
Фундамент дома, доставка стройматериалов - рассчитываются индивидуально.
цена 1 180 000 a
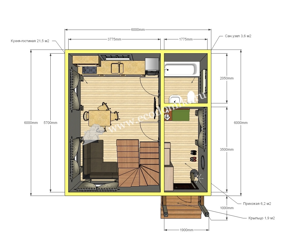
Площадь кровли - 76,9 м2
Площадь 1 этажа - 33,2 м2
Площадь 2 этажа - 28,6 м2
Площадь застройки - 36,0 м2
Контакты
+7 (495) 765-46-48
+7 (963) 663-58-52
Бесплатная консультация
Время работы:
Пн-Сб - с 09:00 до 20:00
