Базовый комплект дома включает:
- Монтаж (сборка) дома.
- Наружние и внутренние стены выполнены из остроганного бруса 150 на 200, 100 на 200. Фаски с каждой стороны сняты.
- Весь материал антисептирован сенеж огне-био.
- Высота 1-го этажа 2.7 метра, высота 2-го этажа 2.5 метра.
- Балки перекрытий выполнены из доски сечением 50, либо 100 мм с черновым полом 25 мм сплошным.
- Брус проложен джутовым волокном и посажен на деревянный нагель 25 мм.
- Доставка материала, погрузо-разгрузочные работы учтены.
- Стропиловка выполнена из доски 50 мм с обрешеткой под рубероид.
- Доработка под клиента проекта включена в стоимость строительных работ.
Фундамент дома, доставка стройматериалов - рассчитываются индивидуально.
цена 850 000 a
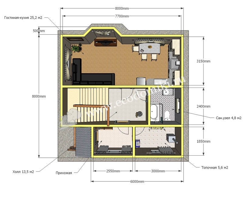
Площадь первого этажа - 60 м2
Площадь второго этажа - 48 м2
Общая площадь - 108 м2
Контакты
+7 (495) 765-46-48
+7 (963) 663-58-52
Бесплатная консультация
Время работы:
Пн-Сб - с 09:00 до 20:00
